居抜き店舗物件を紹介します。造作を高価で買取ります。
池袋西口 飲食可 2階 64坪 135万円
豊島区西池袋3丁目 物件番号 260409-51
JR・地下鉄各線「池袋」駅西口 徒歩2分
東京芸術劇場そば、劇場通り入る
現状渡し、現事務所
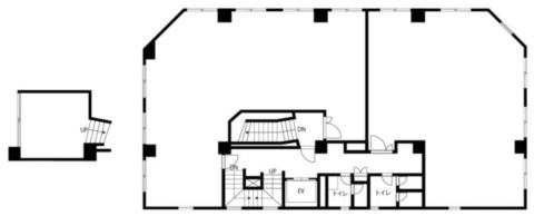
階数・面積 2階 64.43坪 (212.99㎡)
*1階部分含む
賃料 135.31万円(税別) 共益費 含む
保証金 12ヶ月 ※ 償却費 1ヶ月
契約期間 定借2年 再契約 1ヶ月
礼金 1ヶ月 仲介手数料 1ヶ月(家賃)
業態 飲食可(業態相談)
引渡 相談
備考 ※敷金:6ヶ月、水回り・ガス引き込み工事はオーナー負担、
風営法業態・中華・韓国料理不可、
壁面看板使用料1区画:2,000円(税別)/月
※火災保険加入要。賃貸保証加入要検討。
※ネット等への転載不可。




※画像はGoogleから。現状とは異なる場合あり。
周辺地図:物件は明示していません。詳細はお問い合わせください。
