居抜き店舗物件を紹介します。造作を高価で買取ります。
池袋西口 飲食可 1-3階 23坪 120万円
豊島区西池袋1丁目 物件番号 251205-21
JR線・地下鉄「池袋」駅 徒歩1分
みずき通り入る小町通り角地
現況渡し、元韓国料理店
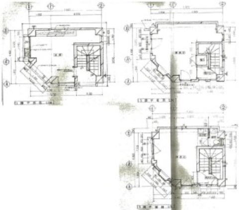
階数・面積 1階 7.5坪 2階 7.57坪 3階 7.57坪
合計 22.64坪(74.84㎡)
賃料 120万円(税別) 共益費 1.5万円(税別)
保証金 10ヶ月 償却費 3ヶ月
契約期間 定借5年(転貸) 再契約 相談
礼金 3ヶ月 仲介手数料 1ヶ月(家賃)
業態 飲食可(業態相談)
引渡 即日
備考 ※焼肉・ラーメン相談可、看板使用料5万円(税別)/月、
中途礼金:契約開始から2年毎に賃料の1.75ヶ月
※火災保険加入要。賃貸保証加入要検討。
※ネット等への転載不可。




※画像はGoogleから。現状とは異なる場合あり。
周辺地図:物件は明示していません。詳細はお問い合わせください。
