居抜き店舗物件を紹介します。造作を高価で買取ります。
池袋東口 中華居抜 4階 30坪 95万円 造作譲渡費 1,000万円
豊島区東池袋1丁目 物件番号 250922-21

JR線・地下鉄各線「池袋」駅 徒歩3分
サンシャイン60通り角地、東口五差路信号近く
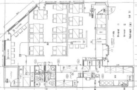
居抜、元中華料理店
階数・面積 4階 30.16坪(99.7㎡)
賃料 95万円(税別) 共益費 10万円(税別)
保証金 8ヶ月 償却費 3ヶ月
契約期間 定借4年(転貸) 再契約 相談
礼金 3ヶ月 仲介手数料 1ヶ月(家賃)
造作譲渡費 1,000万円(税別)
業態 飲食可(業態相談)
引渡 相談
備考 ※重飲食相談可、焼肉・カラオケ業態不可、
看板使用料1.5万円(税別)、
契約満了日2030年9月15日、
エレベーターあり
※火災保険加入要。賃貸保証加入要検討。
※ネット等への転載不可。





※画像はGoogleから。現状とは異なる場合あり。
周辺地図:物件は明示していません。詳細はお問い合わせください。
