居抜き店舗物件を紹介します。造作を高価で買取ります。
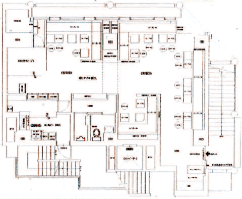
錦糸町 韓国クラブ居抜 2階 33坪 59万円 造作譲渡費 500万円
墨田区江東橋4丁目 物件番号 251203-51
JR、地下鉄「錦糸町」駅 徒歩4分
錦糸堀公園そば、角地
居抜、現韓国クラブ(盛業中につき内密に願います)
階数・面積 2階 33.37坪(110.3㎡)
賃料 59万円(税別) 共益費 3万円(税別)
保証金 300万円 償却費 30%
契約期間 3年 更新料 2ヶ月
礼金 2ヶ月 仲介手数料 1ヶ月(家賃)
造作譲渡費 500万円
業態 飲食可(業態相談)
引渡 相談
備考 ※専用階段あり、重飲食相談可
※火災保険加入要。賃貸保証加入要検討。
※ネット等への転載不可。





※画像はGoogleから。現状とは異なる場合あり。
周辺地図:物件は明示していません。詳細はお問い合わせください。
