居抜き店舗物件を紹介します。造作を高価で買取ります。
東高円寺 うどん店居抜 1階 13坪 48万円 造作譲渡費 120万円
杉並区和田3丁目 物件番号 251225-51
地下鉄「東高円寺」駅 徒歩1分
青梅街道沿い角地
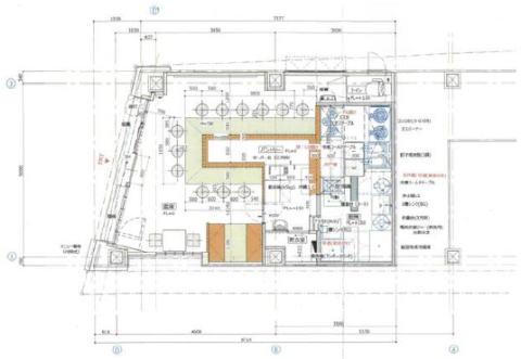
居抜、現うどん店(盛業中につき内密に願います)
階数・面積 1階 13.22坪(43.69㎡)
賃料 48万円(税別) 共益費 含む
保証金 10ヶ月 償却費 3ヶ月
契約期間 2年(転貸) 更新料 1.5ヶ月※
礼金 2ヶ月 仲介手数料 1ヶ月(家賃)
造作譲渡費 120万円
業態 飲食可(業態相談)
引渡 相談
備考 ※匂いや煙の強い業態相談、深夜営業相談、初回更新料1.5ヶ月(2026年7月1日発生)
※火災保険加入要。賃貸保証加入要検討。
※ネット等への転載不可。





※画像はGoogleから。現状とは異なる場合あり。
周辺地図:物件は明示していません。詳細はお問い合わせください。
