居抜き店舗物件を紹介します。造作を高価で買取ります。
新大久保 飲食可 2階 34坪 145万円
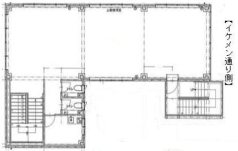
新宿区大久保1丁目 物件番号 250924-43

JR山手線 「新大久保」駅 徒歩7分
西武新宿線 「西武新宿」駅 徒歩6分
イケメン通り、飲食街
スケルトン渡し、現CAFÉ(盛業中に付き内密に願います)
階数・面積 2階 33.75坪 (111.57㎡)
賃料 145万円(税別) 共益費 含む
保証金 10ヶ月 償却費 なし
契約期間 定借2年 再契約 相談
礼金 2ヶ月 仲介手数料 1ヶ月(家賃)
業態 飲食可(業態相談)
引渡 2025年11月予定
備考 ※屋上33.75坪利用の場合は賃料155万円(税別)、焼肉相談可
※火災保険加入要。賃貸保証加入要検討。
※ネット等への転載不可。




※画像はGoogleから。現状とは異なる場合あり。
周辺地図:物件は明示していません。詳細はお問い合わせください。
