居抜き店舗物件を紹介します。造作を高価で買取ります。
歌舞伎町 飲食可 9階 25坪 108万円
新宿区歌舞伎町1丁目 物件番号 260414-41
JR・地下鉄各線 「新宿」駅 徒歩3分
靖国通り、さくら通り入口近く
スケルトン、元サービス店舗
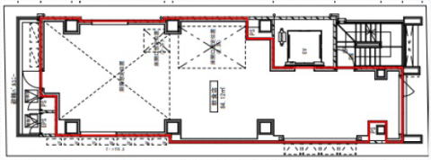
階数・面積 9階 25.44坪 (84.12㎡)
賃料 108万円(税別) 共益費 8万円(税別)
保証金 1000万円 償却費 20%
契約期間 3年 更新料 1.5ヶ月
礼金 なし 仲介手数料 1ヶ月(家賃)
業態 飲食可
引渡 2026年6月15日
備考 ※初回:内装管理費8万円(税別)・デジタルサイネージ製作料3万円(税別)、
看板使用料2.7万円/月(税別)、デジタルサイネージ使用料1.1万円/月(税別)、
消防設備点検費年2回合計約4万円(税別)、
エレベータあり、重飲食相談可
※火災保険加入要。賃貸保証加入要検討。
※ネット等への転載不可。




※画像はGoogleから。現状とは異なる場合あり。
周辺地図:物件は明示していません。詳細はお問い合わせください。
