居抜き店舗物件を紹介します。造作を高価で買取ります。
五反田 立ち飲み屋居抜 1-2階 14坪 48万円 造作譲渡費 100万円
品川区西五反田1丁目 物件番号 230313-43
JR・地下鉄・私鉄各線 「五反田」駅 徒歩5分
桜田通り入る、タキゲン本社裏
居抜、現立ち飲み屋(盛業中のため内密に願います)
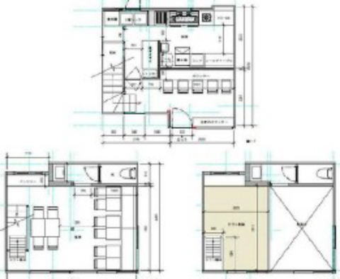
階数・面積 1-2階 合計 14.44坪 (47.74㎡)
賃料 48万円(税別) 共益費 含む
保証金 10ヶ月 償却費 3ヶ月
契約期間 定借3年(転貸) 再契約 相談
礼金 2ヶ月 仲介手数料 1ヶ月(家賃)
造作譲渡費 100万円(税別)
業態 飲食可(業態相談)
引渡 契約後1ヶ月
備考 ※焼肉・ラーメン相談可、
契約満了日2028年11月30日、
エレベーターなし
※火災保険加入要。賃貸保証加入要検討。
※ネット等への転載不可。





※画像はGoogleから。現状とは異なる場合あり。
周辺地図:物件は明示していません。詳細はお問い合わせください。
