居抜き店舗物件を紹介します。造作を高価で買取ります。
恵比寿 飲食可 2階 15坪 60万円
渋谷区恵比寿南1丁目 物件番号 251114-41
JR・地下鉄各線 「恵比寿」駅 徒歩3分
駅西口商店街から入る飲食店街
新築スケルトン、2025年10月竣工
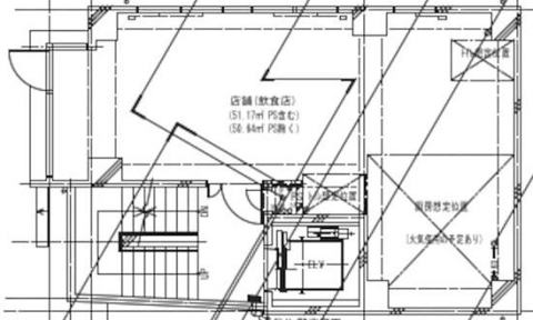
階数・面積 2階 15.48坪 (51.16㎡)
賃料 60万円(税別) 共益費 1.55万円(税別)
保証金 10ヶ月 償却費 3ヶ月
契約期間 2年 転貸 更新料 2ヶ月 手数料含む※
礼金 3ヶ月 仲介手数料 1ヶ月(家賃)
業態 飲食可(業態相談)
引渡 即日
備考 ※初回更新日:2027年11月1日、
エレベータあり、ダクト屋上まであり、
電灯50A、動力30A、ガス6号(いずれも容量アップ不可)
※火災保険加入要。賃貸保証加入要検討。
※ネット等への転載不可。




※画像はGoogleから。現状とは異なる場合あり。
周辺地図:物件は明示していません。詳細はお問い合わせください。
