居抜き店舗物件を紹介します。造作を高価で買取ります。
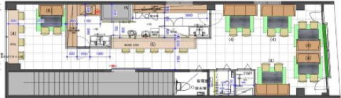
下北沢 カフェバー居抜 2階 19坪 60万円 造作譲渡費 250万円
世田谷区北沢2丁目 物件番号 250926-43

小田急・京王各線 「下北沢」駅 徒歩1分
駅至近、下北沢南口商店街
居抜、元カフェバー
階数・面積 2階 19.24坪 (63.63㎡)
賃料 60万円(税別) 共益費 3千円(税別)
保証金 8ヶ月 償却費 3ヶ月
契約期間 3年※ 転貸 更新料 1.5ヶ月
礼金 3ヶ月 仲介手数料 1ヶ月(家賃)
造作譲渡費 250万円(税別)
業態 飲食可(業態相談)
引渡 即時
備考 ※初回更新日2028年8月31日
※火災保険加入要。賃貸保証加入要検討。
※ネット等への転載不可。





※画像はGoogleから。現状とは異なる場合あり。
周辺地図:物件は明示していません。詳細はお問い合わせください。
