居抜き店舗物件を紹介します。造作を高価で買取ります。
大森 飲食可 1階 40坪 153万円
大田区大森北1丁目 物件番号 251105-22
JR線「大森」駅 徒歩2分
ガード通り、大森駅東口三角広場近く
新築スケルトン、2025年10月竣工
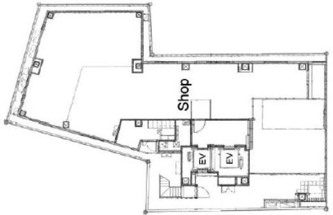
階数・面積 1階 40.13坪(132.66㎡)
賃料 153.23万円(税別) 共益費 相談
保証金 12ヶ月 償却費 相談
契約期間 定借2年 再契約 相談
礼金 なし 仲介手数料 1ヶ月(家賃)
業態 飲食可(業態相談)
引渡 相談
※火災保険加入要。賃貸保証加入要検討。
※ネット等への転載不可。




※画像はGoogleから。現状とは異なる場合あり。
周辺地図:物件は明示していません。詳細はお問い合わせください。
