居抜き店舗物件を紹介します。造作を高価で買取ります。
蒲田 飲食可 1-3階 46坪 140万円
大田区蒲田5丁目 物件番号 260415-42
JR・私鉄各線 「蒲田」駅 徒歩3分
蒲田駅東口大通り、
現況渡し、元靴店他
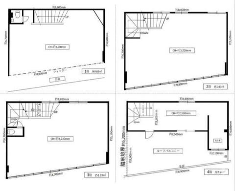
階数・面積 1階 15.02坪 2階 15.71坪 3階 15.71坪
合計 46.44坪(153.41㎡)
賃料 140万円(税別) 共益費 8万円(税別)
保証金 10ヶ月 償却費 3ヶ月
契約期間 定借9年 転貸 再契約 相談
礼金 2ヶ月 仲介手数料 1ヶ月(家賃)
業態 飲食可
引渡 相談
備考 ※エレベータなし、
契約満了2036年3月31日、
中途礼金2年毎1.5ヶ月発生、
商店会費2.7万円/月、
4階6.94坪及びルーフテラス利用可能、
焼肉相談可
※火災保険加入要。賃貸保証加入要検討。
※ネット等への転載不可。




※画像はGoogleから。現状とは異なる場合あり。
周辺地図:物件は明示していません。詳細はお問い合わせください。
