居抜き店舗物件を紹介します。造作を高価で買取ります。
新橋 飲食可 1階 12坪 38万円
港区新橋5丁目 物件番号 250926-41

JR・地下鉄各線 「新橋」駅 徒歩8分
地下鉄 「御成門」駅 徒歩6分
一号線とレンガ通りを結ぶエリア
新築スケルトン、2025年9月竣工
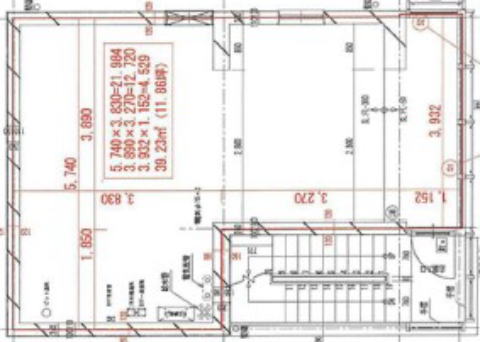
階数・面積 1階 11.86坪 (39.21㎡)
賃料 37.74万円(税別) 共益費 含む
保証金 12ヶ月 償却費 2ヶ月
契約期間 定借10年 再契約 1ヶ月
礼金 1ヶ月 仲介手数料 1ヶ月(家賃)
業態 飲食可(業態相談)
引渡 即時
※火災保険加入要。賃貸保証加入要検討。
※ネット等への転載不可。




※画像はGoogleから。現状とは異なる場合あり。
周辺地図:物件は明示していません。詳細はお問い合わせください。
