居抜き店舗物件を紹介します。造作を高価で買取ります。
浜松町 飲食可 1階 33坪 106万円
港区浜松町2丁目 物件番号 251024-44
JR各線 「浜松町」駅 徒歩2分
地下鉄各線 「大門」駅 徒歩8分
JR南口(金杉橋方面)近く、港町架道橋近く
新築スケルトン、2025年11月竣工予定
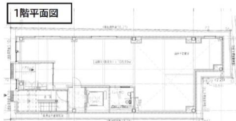
階数・面積 1階 32.97坪 (108.99㎡)
賃料 105.51万円(税別) 共益費 6.6万円(税別)
保証金 6ヶ月 償却費 1ヶ月
契約期間 2年 更新料 1ヶ月
礼金 1ヶ月 仲介手数料 1ヶ月(家賃)
業態 飲食可
引渡 相談
備考 ※焼肉・ラーメン相談可
※火災保険加入要。賃貸保証加入要検討。
※ネット等への転載不可。




※画像はGoogleから。現状とは異なる場合あり。
周辺地図:物件は明示していません。詳細はお問い合わせください。
