居抜き店舗物件を紹介します。造作を高価で買取ります。
外苑前 飲食可 1階 31坪 78万円
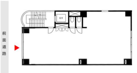
港区南青山2丁目 物件番号 251029-42
地下鉄 「外苑前」駅 徒歩1分
駅至近、246号線入りすぐ
現況渡し、元クリニック
階数・面積 1階 31.45坪 (103.96㎡)
賃料 78万円(税別) 共益費 含む
保証金 8ヶ月 償却費 2ヶ月
契約期間 2年 更新料 1ヶ月
礼金 1ヶ月 仲介手数料 1ヶ月(家賃)
業態 飲食可(業態相談)
引渡 相談
備考 ※重飲食不可
※火災保険加入要。賃貸保証加入要検討。
※ネット等への転載不可。




※画像はGoogleから。現状とは異なる場合あり。
周辺地図:物件は明示していません。詳細はお問い合わせください。
