居抜き店舗物件を紹介します。造作を高価で買取ります。
外苑前 飲食可 B1階 25坪 63万円 造作譲渡費 相談
港区南青山2丁目 物件番号 240527-61
東京メトロ銀座線「外苑前」駅 徒歩4分
青山通り、消防署入口入る
現況渡し、元イタリア料理
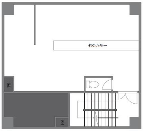
階数・面積 地下1階 約25坪 (82.65㎡)
賃料 62.73万円(税別) 共益費 含む
保証金 10ヶ月 償却費 30%
契約期間 定借3年 再契約 1ヶ月
礼金 2ヶ月 仲介手数料 1ヶ月(家賃)
造作譲渡費 相談
業態 飲食可(業態相談)
引渡 即日
備考 ※臭い、煙、油の強い業態不可
※トイレ(残置)※エレベーターなし
※火災保険加入要。賃貸保証加入要検討。
※ネット等への転載不可。




※画像はGoogleから。現状とは異なる場合あり。
周辺地図:物件は明示していません。詳細はお問い合わせください。
