居抜き店舗物件を紹介します。造作を高価で買取ります。
中目黒 韓国料理居抜 2階 15坪 49万円 造作譲渡費 相談
目黒区中目黒1丁目 物件番号 260107-52
東急線、地下鉄「中目黒」駅 徒歩5分
目黒川沿い、目黒学院運動場そば
居抜き、元韓国料理店
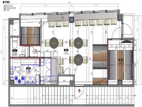
階数・面積 2階 14.96坪 (49.46㎡)
賃料 48.6万円(税別) 共益費 1万円(税別)
保証金 8ヶ月 償却費 3ヶ月
契約期間 普通借3年 転貸 更新料 1.5ヶ月※
礼金 1ヶ月 仲介手数料 1ヶ月(家賃)
造作譲渡費 相談
業態 飲食可(業態相談)
引渡 即日
備考 ※重飲食相談可、
初回更新日:2028年10月1日、
1年以内解約で賃料1カ月分の違約金
※火災保険加入要。賃貸保証加入要検討。
※ネット等への転載不可。





※画像はGoogleから。現状とは異なる場合あり。
周辺地図:物件は明示していません。詳細はお問い合わせください。
