居抜き店舗物件を紹介します。造作を高価で買取ります。
学芸大学 飲食可 2階 48坪 170万円
目黒区鷹番3丁目 物件番号 260225-41
東急東横線 「学芸大学」駅 徒歩2分
駅至近、人気のGAKUDAI KOUKASHITAエリア向い
新築スケルトン、2026年5月末竣工予定
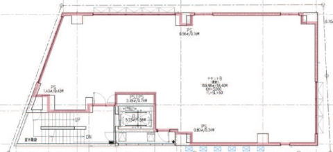
階数・面積 2階 48.4坪 (159.98㎡)
賃料 170万円(税別) 共益費 ※
保証金 12ヶ月 償却費 相談
契約期間 定借5年 相談可 再契約 相談
礼金 1ヶ月 仲介手数料 1ヶ月(家賃)
業態 飲食可
引渡 相談
備考 ※共用部電気・水道代は面積按分にて負担あり、
ダクト配管実装、焼肉相談可
※火災保険加入要。賃貸保証加入要検討。
※ネット等への転載不可。




※画像はGoogleから。現状とは異なる場合あり。
周辺地図:物件は明示していません。詳細はお問い合わせください。
