居抜き店舗物件を紹介します。造作を高価で買取ります。
大島 飲食可 1階 21坪 51万円
江東区大島7丁目 物件番号 251204-22
地下鉄「大島」駅 徒歩4分
サンロード中の橋通り、竹の湯跡
新築スケルトン渡し、2025年10月竣工
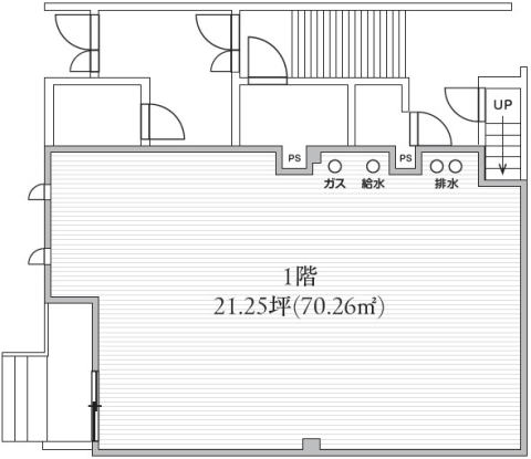
階数・面積 1階 21.25坪(70.26㎡)
賃料 51万円(税別) 共益費 含む
保証金 10ヶ月 償却費 相談
契約期間 2年 更新料 なし
礼金 なし 仲介手数料 1ヶ月(家賃)
業態 飲食可(業態相談)
引渡 即日
備考 ※重飲食不可、和食店相談可(匂い・煙対策必須)、
看板使用料2万円/月(税別)、
フリーレント相談、
商店会費・町会費あり
※火災保険加入要。賃貸保証加入要検討。
※ネット等への転載不可。




※画像はGoogleから。現状とは異なる場合あり。
周辺地図:物件は明示していません。詳細はお問い合わせください。
