居抜き店舗物件を紹介します。造作を高価で買取ります。
お花茶屋 飲食可 1-2階 27坪 35万円
葛飾区宝町2丁目 物件番号 250930-44

京成本線 「お花茶屋」駅 徒歩1分
駅至近、お花茶屋商店街角地
現況渡し、元靴販売店
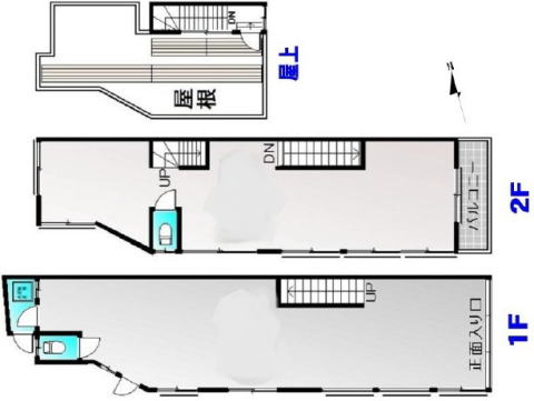
階数・面積 1階 14.28坪 2階 12.77坪
合計 27.05坪 (89.43㎡)
賃料 35万円(税別) 共益費 含む
保証金 3ヶ月 償却費 なし
契約期間 3年 更新料 1.5ヶ月 手数料含む
礼金 1ヶ月 仲介手数料 1ヶ月(家賃)
業態 飲食可 (業態相談)
引渡 相談
備考 ※トイレ残地、屋上あり
※火災保険加入要。賃貸保証加入要検討。
※ネット等への転載不可。




※画像はGoogleから。現状とは異なる場合あり。
周辺地図:物件は明示していません。詳細はお問い合わせください。
