居抜き店舗物件を紹介します。造作を高価で買取ります。
水天宮前 鉄板焼居抜 2階 26坪 74万円 造作譲渡費 相談
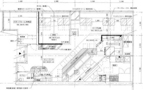
中央区日本橋人形町1丁目 物件番号 230731-62
東京メトロ半蔵門線「水天宮前」駅 徒歩2分
新大橋通り、水天宮前交差点近く
居抜き、元鉄板焼き店
階数・面積 2階 26.23坪 (86.7㎡)
賃料 74万円(税抜) 共益費 含む
保証金 10ヶ月 償却費 3ヶ月
契約期間 普通借2年 転貸 更新料 1ヶ月 ※
礼金 3ヶ月 仲介手数料 1ヶ月(家賃)
造作譲渡費 相談
業態 飲食可(業態相談)
引渡 相談
備考 ※重飲食可、カラオケ・麻雀・ゲームセンター不可、
営業時間:23時まで、
初回更新日:2028年4月1日、
更新事務手数料:0.5ヶ月
※火災保険加入要。賃貸保証加入要検討。
※ネット等への転載不可。





※画像はGoogleから。現状とは異なる場合あり。
周辺地図:物件は明示していません。詳細はお問い合わせください。
