居抜き店舗物件を紹介します。造作を高価で買取ります。
神田 和食居抜 1階 7坪 36万円 造作譲渡費 相談
千代田区内神田3丁目 物件番号 180118-31
JR山手線「神田」駅 西口徒歩1分
西口通り商店街入る、角地
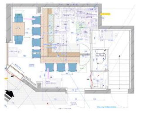
居抜、和食店(盛業中に付き内密に願います)
階数・面積 1階 6.7坪 (22.14㎡)
賃料 36.3万円(税別) 共益費 含む
保証金 10ヶ月 償却費 1ヶ月
契約期間 定借3年 再契約 1ヶ月
礼金 1ヶ月 仲介手数料 1ヶ月(家賃)
造作譲渡費 相談
業態 飲食可(業態相談)
引渡 2026年6月中旬
備考 ※風俗系不可、焼肉・ラーメン相談可
※火災保険加入要。賃貸保証加入要検討。
※ネット等への転載不可。





※画像はGoogleから。現状とは異なる場合あり。
周辺地図:物件は明示していません。詳細はお問い合わせください。
