居抜き店舗物件を紹介します。造作を高価で買取ります。
湯島 カラオケバー居抜 1階 29坪 102万円 造作譲渡費 相談
文京区湯島3丁目 物件番号 251119-21
東京メトロ千代田線「湯島」駅 徒歩1分
駅2番出口、天神下交差点近く、仲町通り
居抜、現カラオケバー
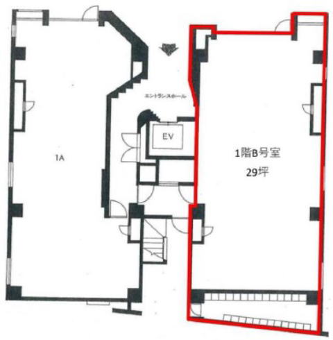
階数・面積 1階 29.0坪 (95.86㎡)
賃料 101.5万円(税別) 共益費 5.8万円(税別)
保証金 6ヶ月 償却費 2ヶ月
契約期間 定借2年 再契約 1ヶ月
礼金 1ヶ月 仲介手数料 1ヶ月(家賃)
造作譲渡費 相談
業態 飲食可(業態相談)
引渡 2026年2月上旬予定
備考 ※焼肉相談可
※火災保険加入要。賃貸保証加入要検討。
※ネット等への転載不可。




※画像はGoogleから。現状とは異なる場合あり。
周辺地図:物件は明示していません。詳細はお問い合わせください。
