居抜き店舗物件を紹介します。造作を高価で買取ります。
吉祥寺 飲食可 1階 83坪 365万円
武蔵野市吉祥寺本町2丁目 物件番号 220517-43
JR中央総武線 「吉祥寺」駅 徒歩5分
大正通りから入る西二条通り、東急裏エリア
スケルトン渡し、現スポーツジム(盛業中に付き内密に願います)
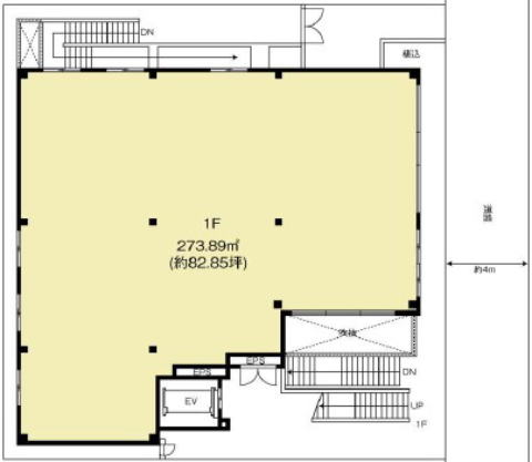
階数・面積 1階 82.85坪 (273.89㎡)
*分割相談可
賃料 364.54万円(税別) 共益費 含む
保証金 10ヶ月 償却費 なし
契約期間 2年 更新料 なし
礼金 なし 仲介手数料 1ヶ月(家賃)
業態 飲食可(重飲食可)
引渡 2026年10月1日
備考 ※24時間営業可、商店会費あり、焼肉相談可
※火災保険加入要。賃貸保証加入要検討。
※ネット等への転載不可。




※画像はGoogleから。現状とは異なる場合あり。
周辺地図:物件は明示していません。詳細はお問い合わせください。
