居抜き店舗物件を紹介します。造作を高価で買取ります。
TX浅草 飲食可 3階 42坪 108万円
台東区浅草1丁目 物件番号 260402-51
つくばエクスプレス「浅草」駅 徒歩2分
地下鉄各線 「浅草」駅 徒歩5分
新仲見世(アーケード)・いっぷく横丁角地
現況渡し、現着物レンタルショップ(盛業中につき内密に願います)
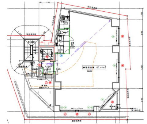
階数・面積 3階 41.59坪 (137.48㎡)
賃料 108.11万円(税別) 共益費 含む
保証金 10ヶ月 償却費 相談
契約期間 2年 更新料 なし
礼金 なし 仲介手数料 1ヶ月(家賃)
業態 飲食可(業態相談)
引渡 2026年8月予定
備考 ※エレベータあり、カフェ他軽飲食推奨
※火災保険加入要。賃貸保証加入要検討。
※ネット等への転載不可。




※画像はGoogleから。現状とは異なる場合あり。
周辺地図:物件は明示していません。詳細はお問い合わせください。
