居抜き店舗物件を紹介します。造作を高価で買取ります。
高田馬場 ジンギスカン居抜 B1階 18坪 42万円 造作譲渡費 相談
新宿区高田馬場3丁目 物件番号 231124-44
JR・地下鉄・私鉄各線 「高田馬場」駅 徒歩2分
さかえ通り商店街、周辺に大学・専門学校多し
居抜、現ジンギスカン店(盛業中に付き内密に願います)
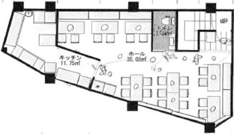
階数・面積 地下1階 17.54坪 (58坪)
賃料 42万円(税別) 共益費 3万円(税別)
保証金 10ヶ月 償却費 3ヶ月
契約期間 定借5年 再契約 1.5ヶ月
礼金 2ヶ月 仲介手数料 1ヶ月(家賃)
造作譲渡費 相談
業態 飲食可(重飲食相談)
引渡 相談
備考 ※中途礼金1.5ヶ月(2028年4月30日発生)、
ダクトあり、とんかつ、カラオケ業態不可
※火災保険加入要。賃貸保証加入要検討。
※ネット等への転載不可。





※画像はGoogleから。現状とは異なる場合あり。
周辺地図:物件は明示していません。詳細はお問い合わせください。
