居抜き店舗物件を紹介します。造作を高価で買取ります。
神楽坂 バー居抜 3階 22坪 52万円 造作譲渡費 相談
新宿区神楽坂3丁目 物件番号 230616-43

JR・地下鉄各線 「飯田橋」駅 徒歩4分
東京メトロ東西線 「神楽坂」駅 徒歩7分
芸者新路中心、趣のある路地
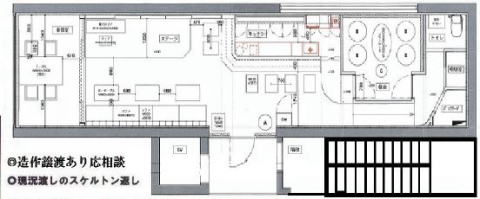
居抜相談、現BAR(盛業中につき内密に願います)
階数・面積 3階 21.83坪 (72.15㎡)
賃料 52.4万円(税別) 共益費 含む
保証金 10ヶ月 償却費 なし *2年未満50%
契約期間 2年 更新料 1ヶ月
礼金 2ヶ月 仲介手数料 1ヶ月(家賃)
造作譲渡費 相談
業態 飲食可
引渡 相談
備考 ※エレベータあり、
看板料2.3万円/月(税別)、
焼肉相談可
※火災保険加入要。賃貸保証加入要検討。
※ネット等への転載不可。




※画像はGoogleから。現状とは異なる場合あり。
周辺地図:物件は明示していません。詳細はお問い合わせください。
