居抜き店舗物件を紹介します。造作を高価で買取ります。
経堂 飲食可 1階 14坪 40万円
世田谷区経堂1丁目 物件番号 170808-11

小田急線「経堂」駅 徒歩4分
大手チェーン店も多い農大通り商店街
現況渡し、元スイーツ店
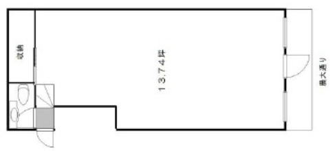
階数・面積 1階 13.75坪 (45.45㎡)
賃料 40万円(税別) 共益費 含む
保証金 240万円 償却費 20%
契約期間 定借2年 再契約 相談
礼金 2ヶ月 仲介手数料 1ヶ月(家賃)
業態 飲食可
引渡 即時
備考 ※トイレ等残地あり、焼肉・ラーメン相談可
※火災保険加入要。賃貸保証加入要検討。
※ネット等への転載不可。




※画像はGoogleから。現状とは異なる場合あり。
周辺地図:物件は明示していません。詳細はお問い合わせください。
