居抜き店舗物件を紹介します。造作を高価で買取ります。
三田 飲食可 1階 39坪 194万円
港区芝5丁目 物件番号 220131-61

都営三田線「三田」駅 徒歩1分
JR山手線「田町」駅 徒歩3分
第一京浜、田町駅西口交差点すぐ
スケルトン渡し、現学習塾(盛業中に付き内密に願います)、以前日本料理店
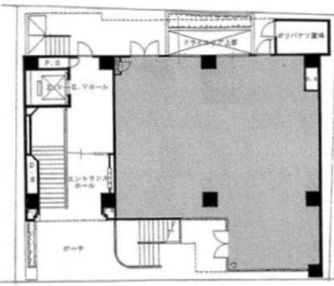
階数・面積 1階 38.72坪 (128.03㎡)
賃料 193.6万円(税別) 共益費 含む
保証金 12ヶ月 償却費 2ヵ月
契約期間 相談 更新料 1ヶ月
礼金 無し 仲介手数料 1ヶ月(家賃)
業態 飲食可(業態相談)
引渡 2026年1月
備考 ※臭い・煙の強い業態不可
※火災保険加入要。賃貸保証加入要検討。
※ネット等への転載不可。




※画像はGoogleから。現状とは異なる場合あり。
周辺地図:物件は明示していません。詳細はお問い合わせください。
