居抜き店舗物件を紹介します。造作を高価で買取ります。
麻布十番 飲食可 1階 32坪 190万円
港区麻布十番1丁目 物件番号 190402-14
地下鉄各線 「麻布十番」駅 徒歩1分
駅至近、環状三号線、十番稲荷神社近く
新築スケルトン、2026年3月末竣工予定
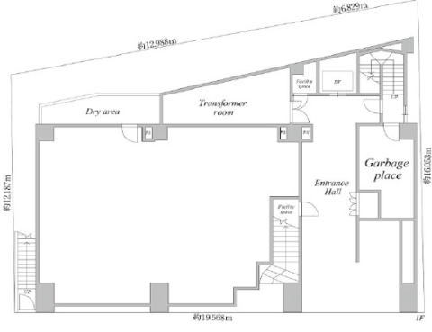
階数・面積 1階 31.63坪 (104.59㎡)
賃料 189.78万円(税別) 共益費 含む
保証金 12ヶ月 償却費 2ヶ月
契約期間 定借5年 再契約 1ヶ月
礼金 1ヶ月 仲介手数料 1ヶ月(家賃)
業態 飲食可(業態相談)
引渡 2026年4月1日予定
備考 ※臭い・煙の強い業態不可、お洒落な業態相談可
※火災保険加入要。賃貸保証加入要検討。
※ネット等への転載不可。




※画像はGoogleから。現状とは異なる場合あり。
周辺地図:物件は明示していません。詳細はお問い合わせください。
