居抜き店舗物件を紹介します。造作を高価で買取ります。
自由が丘 飲食可 2階 22坪 125万円
目黒区自由が丘1丁目 物件番号 251003-41

東急各線 「自由が丘」駅 徒歩1分
駅至近、マリクレールストリート
スケルトン、元カットサロン
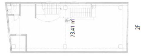
階数・面積 2階 22.21坪 (73.41㎡)
賃料 125万円(税別) 共益費 含む
保証金 7ヶ月 償却費 20%
契約期間 3年 更新料 相談
礼金 1ヶ月 仲介手数料 1ヶ月(家賃)
業態 飲食可(業態相談)
引渡 相談
備考 ※重飲食相談可
※火災保険加入要。賃貸保証加入要検討。
※ネット等への転載不可。




※画像はGoogleから。現状とは異なる場合あり。
周辺地図:物件は明示していません。詳細はお問い合わせください。
