居抜き店舗物件を紹介します。造作を高価で買取ります。
自由が丘 飲食可 1階 15坪 65万円
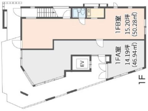
目黒区自由が丘1丁目 物件番号 250919-41
東急各線 「自由が丘」駅 徒歩4分
自由通り入る、熊野神社境内隣接(往来可)
新築スケルトン、2026年5月竣工予定
階数・面積 1階 15.2坪 (50.28㎡)
賃料 65.44万円(税別) 共益費 1.2万円(税別)
保証金 6ヶ月 償却費 20%
契約期間 3年 更新料 1ヶ月
礼金 1ヶ月 仲介手数料 1ヶ月(家賃)
業態 飲食可(業態相談)
引渡 2026年6月上旬予定
※火災保険加入要。賃貸保証加入要検討。
※ネット等への転載不可。





※画像はGoogleから。現状とは異なる場合あり。
周辺地図:物件は明示していません。詳細はお問い合わせください。
